ALPS40
“築く”喜び
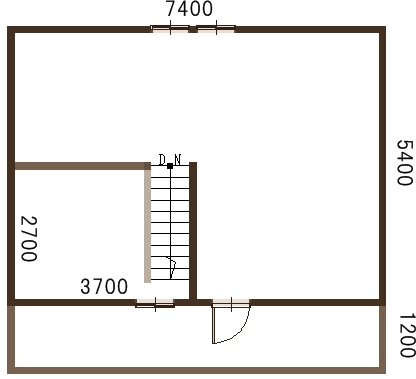
●面積:1F 25.92㎡(16畳/8坪)2F 20.52㎡(12畳/6坪)
●ログ材:丸ログφ150 / 角ログ90×150
●設備:トイレ、ユニットバス1014、キッチン、ガス給湯
●窓:アルミサッシペアガラス
間取り、間仕切り壁は自由に変更が可能です。
●玄関ドア
木製
●屋根
GL鋼板
●オプション
ベランダ、ドーマー、
テラス、天窓
●標準基礎工事含
※付帯工事・諸経費別途。寒冷地など立地条件により価格が変わります。
ALPS98
“追及”の逸品
本体価格:10,570,000円(税別)~
総床面積:71.91㎡
3人~4人のご家族様でも十分満足していただける広さを確保。コンパクトながらも自然素材の優しさ、国産杉の芳香を十分に堪能できます。DIYが好きな方や、自然の暮らし、子供にやさしい環境を考えている方にはぴったりのログハウスです。無駄のないくつろげる空間と住み心地の良さ耐震性を最大限に追求した永く住めるログハウスです。ALPS98をベースにライフプランに合わせて自由設計が可能になっています。
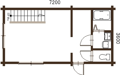
●面積
1F 39.96㎡(24畳/12坪)
2F 31.95㎡(19畳/9坪)
●ログ材
丸ログφ150/角ログ100×195
●設備
トイレ、バス、キッチン、
電気、給排水工事込
●窓
アルミサッシペアガラス
●玄関ドア
木製
●屋根
GL鋼板
●付属
天窓、丸太階段
●標準基礎工事含
※付帯工事・諸経費別途。寒冷地など立地条件により価格が変わります。
P&B(ポスト&ビーム)
-標準仕様-
●ログ材:丸ログφ250 梁、柱
●設備:トイレ、ユニットバス キッチン、洗面台
●窓:アルミサッシペアガラス
●柱梁内外装:国産材
●断熱材:天井、床 壁 グラスウール100㎜
●基礎:ベタ基礎 150㎜
自由設計
設計士と共に満足いくまで追求し築くログハウス
参考価格:1830万円~/30坪
ベースを基にお客様のご希望の間取り、仕様で自由に設計致します。住宅や別荘、店舗や公共施設など、お客様の用途に合わせた設計が可能です。職人の匠の技によって、一棟一棟お客様の思いを追求し、形にしていきます。まだ靴下をはいての生活をしていますか?無垢床が優しくそして、温かく心地よさを体験してください。夏は涼しく、冬は暖かく、地震に対しての耐震性能も最高レベルです。自然素材で家族の健康を守り、命を守る家です!毎日がイキイキと輝かしい人生になるように、自信をもってお客様のニーズにお応えします。
店舗・公共建物
伊奈がヶ湖 公共トイレ
JR中央線「小淵沢」駅 駅構内待合室
森の中のカフェ
眼科





















